SNS

2018.12.27

【仙台Rゲート通信vol.3】ウォークスルーな衣食住を楽しみたい!

PR
立地と広さのバランスを絶妙に満たした中古物件をリノベーション(大崎市古川Kさん宅)

毎日の生活に、ちょっとした癒しを与える月イチペースの連載企画「仙台Rゲート通信」。今回も素敵なリノベーション事例を紹介するよ!

今回は大崎市古川にお住まいのKさん宅におじゃましました。お子さんの小学校学区を最優先に住まいを検討し、立地と広さを両立した築39年の中古物件を購入、リノベーションを施しました。家事が楽になる生活動線を採用した造りは、共働きのご夫婦の忙しい日常に快適さをプラスしてくれたよ。

リノベーションのポイントやこだわり、イベント情報など、詳しくは、現在発売中の『S-style1月号(1225日発売)、または、「仙台Rゲート」のホームページやSNSをチェックしてみてね♪

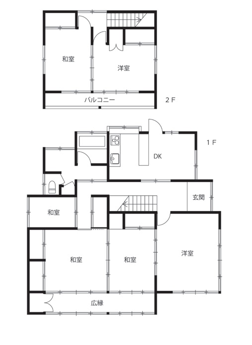
【Beforeの図面】新築建売住宅のような狭小物件ではなく、家族がのびのびと過ごせる広々とした中古物件を購入

【Afterの図面】「家事空間」「プライベート空間」「家族空間」を動線がぐるりと囲むレイアウト。北側に家事作業をする空間をまとめ、南側の一番開けた場所に家族が寛ぐ空間を設けました

共働きのご夫婦、家事や育児を協力して楽しくこなしており、内装のテイストはぬくもりと統一感のあるデザインになっています

外部からの環境(日の当たり方・風の通り方)に合わせた配置や高い天井などで開放感と味わいのある空間を演出

仙台Rゲート

住所: 仙台市太白区八本松1-13-10 S2

電話:022-393-5935

HP:http://www.rgate.co.jp/

Map

癒しロボ

せんだいタウン情報 S-styleの非公認キャラクターとしてその名をほしいままにしてきた癒しロボ。これまで連載してきた4コママンガを振り返ってみたり、癒しロボが注目する情報などをお伝えしていきます。